Vendesi Importante villa libera su 4 lati.
Quarrata in prima collina con un panorama mozzafiato, vendesi importante proprietà completamente e finemente ristrutturata composta da due unità catastali…
€1.300.000
LA QUERCE, PRATO PRATO TOSCANA
Vendita
€310.000







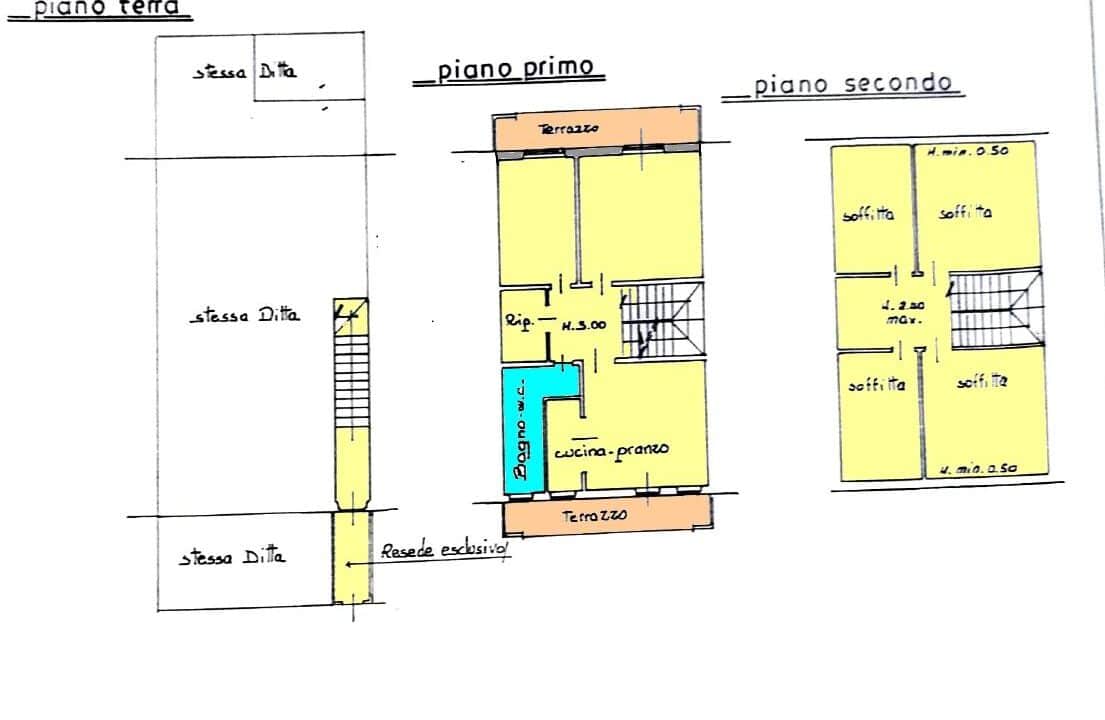
Benvenuti a Prato zona Querce, una delle zone residenziali più ambite della città! Proponiamo in vendita un luminoso appartamento su due piani con ingresso indipendente, situato in una via tranquilla e ben servita. L’immobile, privo di spese condominiali, si sviluppa su una superficie commerciale di 100 m² e calpestabile di 85 m², offrendo ampi spazi e comfort.
Al piano terra troverete un accogliente piccolo resede e una scala di accesso al primo piano. Qui si apre un soggiorno con cucinotto e terrazzo, ideale per momenti di relax e convivialità. Il bagno finestrato e il ripostiglio completano la zona giorno. La zona notte comprende due camere da letto, una matrimoniale e una singola, entrambe con accesso al terrazzo posteriore.
L’appartamento dispone anche di un accesso diretto al vano soffitta, perfetto per essere utilizzato come spazio aggiuntivo o deposito. L’immobile è abitabile fin da subito e richiede poche opere di manutenzione, rendendolo una scelta ideale per chi cerca una soluzione pronta all’uso.
Costruito nel 2000, l’appartamento è in buono stato e dotato di riscaldamento alimentato a gas naturale. L’orientamento est-ovest garantisce un’ottima luminosità durante tutto il giorno
Quarrata in prima collina con un panorama mozzafiato, vendesi importante proprietà completamente e finemente ristrutturata composta da due unità catastali…
€1.300.000
Se stai cercando un ufficio che unisca visibilità, funzionalità e comfort, questo è l’immobile perfetto per te! Situato al primo…
€220.000
IMMOBILI
LE NOSTRE GUIDE
INFORMAZIONI
P.IVA e C.F 02199930971 | REA PO – 511089 Cap. Sociale 10.000,00€ | [email protected]
P.IVA e C.F 02199930971
REA PO – 511089
Cap. Sociale 10.000,00€
PEC: [email protected]
Web Design & SEO by Nut For Design | Back-end Development by Kormi Web Solutions | Copywriting by Martina Melgazzi
Owning a home is a keystone of wealth… both financial affluence and emotional security.
Suze Orman