Posto auto doppio in locazione
Piazza d’Azeglio pressi proponiamo l’affitto di comodo posto auto doppio coperto in garage di più ampie dimensioni. Canone mensile richiesto…
€350
Via Pomeria , CENTRO STORICO, PRATO PRATO TOSCANA
Vendita
€290.000

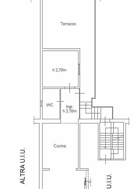
Scopri questo affascinante appartamento bilocale situato a pochi passi dal cuore storico di Prato, immerso in un contesto tranquillo e verdeggiante, adiacente a giardini e servizi principali. L’ingresso si apre su un ampio soggiorno con salotto open space, perfetto per momenti di relax e convivialità. La zona notte include una spaziosa camera matrimoniale e un bagno.
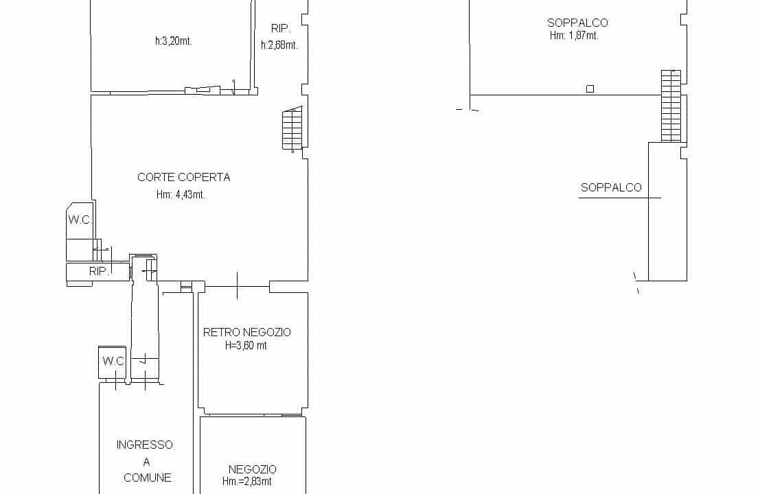
Uno dei punti di forza di questa proprietà è lo splendido terrazzo abitabile, ideale per pranzi e cene all’aperto con amici e familiari. Situato in una piccola palazzina di sole quattro unità immobiliari, l’appartamento garantisce privacy e poche spese condominiali. Costruito nel 1970, si presenta in buono stato con riscaldamento a pompa di calore e gas naturale. Situato al primo piano con ascensore, gode di un’ottima esposizione a nord-est. Inoltre, la proprietà comprende un immobile C/1 versatile, adatto a diverse attività commerciali, con negozio, retro negozio, deposito, soppalco e bagno per un totale di circa 100 mq.
Non perdere l’opportunità di vivere in una delle zone più ambite di Prato!
Piazza d’Azeglio pressi proponiamo l’affitto di comodo posto auto doppio coperto in garage di più ampie dimensioni. Canone mensile richiesto…
€350
Prato zona Maliseti in ottimo contesto di sole piccole palazzine e villette. Vendesi luminoso appartamento, sito al piano secondo senza…
€150.000
IMMOBILI
LE NOSTRE GUIDE
INFORMAZIONI
P.IVA e C.F 02199930971 | REA PO – 511089 Cap. Sociale 10.000,00€ | [email protected]
P.IVA e C.F 02199930971
REA PO – 511089
Cap. Sociale 10.000,00€
PEC: [email protected]
Web Design & SEO by Nut For Design | Back-end Development by Kormi Web Solutions | Copywriting by Martina Melgazzi
Owning a home is a keystone of wealth… both financial affluence and emotional security.
Suze Orman