Vendesi Villetta angolare nuova in stile colonico
QUARRATA, Vendita Nuova costruzione in stile colonico, l’intervento riguarda la costruzione di due ville adiacenti entrambe completamente indipendenti con giardino…
€620.000
NESPOLO, PISTOIA PISTOIA TOSCANA
Vendita
€238.000
































Appartamento su Due Piani in Vendita – Un’Occasione Imperdibile!
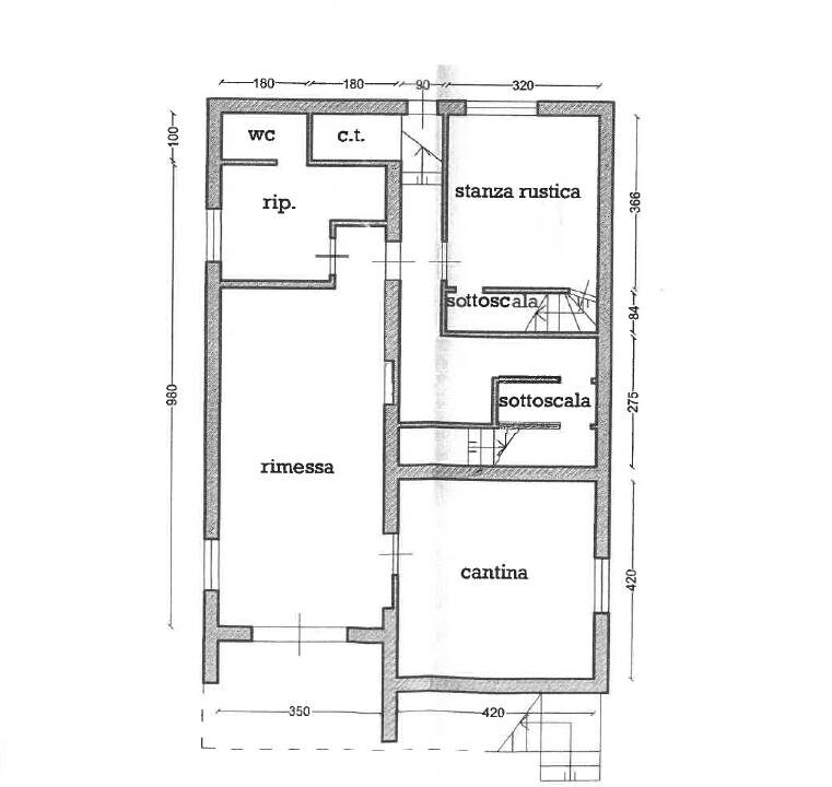
Scopri questo affascinante appartamento su due piani, situato in una porzione di un ampio fabbricato bifamiliare. La proprietà offre una zona parcheggio riservata nella parte frontale e un giardino che circonda l’immobile su quattro lati, ideale per chi ama gli spazi verdi. Al piano terra, troverai una rimessa spaziosa, una cantina e un ripostiglio, tutti completamente ristrutturati, ed adibiti a piccolo appartamento pronti per essere utilizzati al meglio.
Salendo al piano primo, accessibile tramite una scala esterna e interna, si accede a un appartamento in condizioni abitabili. L’ingresso conduce a un accogliente soggiornino, seguito da una cucina abitabile perfetta per i pranzi in famiglia. La zona notte è composta da due camere matrimoniali e una cameretta singola, offrendo ampi spazi per genitori e figli. Non dimenticare l’ampio bagno e i due terrazzi, dove potrai goderti momenti di relax all’aperto.
Con una superficie commerciale di 160 m² e 130 m² calpestabili, questo appartamento è ideale per chi cerca una soluzione ben definita per la propria famiglia. Dotato di aria condizionata, riscaldamento a gas naturale e armadi a muro, rappresenta un’opportunità da non perdere. Situato in una zona tranquilla ma ben collegata, questa proprietà è perfetta per chi desidera vivere in un contesto sereno senza rinunciare alla comodità. Contattaci per maggiori informazioni e per prenotare una visita!
l’immobile si presta bene anche per una soluzione genitori figli con due spazzi ben definiti.
QUARRATA, Vendita Nuova costruzione in stile colonico, l’intervento riguarda la costruzione di due ville adiacenti entrambe completamente indipendenti con giardino…
€620.000
Vendesi zona Poggetto rara villetta a schiera costruzione anni 85′ da rimodernare ma solida nella struttura. L’immobile si sviluppa su…
€475.000
IMMOBILI
LE NOSTRE GUIDE
INFORMAZIONI
P.IVA e C.F 02199930971 | REA PO – 511089 Cap. Sociale 10.000,00€ | [email protected]
P.IVA e C.F 02199930971
REA PO – 511089
Cap. Sociale 10.000,00€
PEC: [email protected]
Web Design & SEO by Nut For Design | Back-end Development by Kormi Web Solutions | Copywriting by Martina Melgazzi
Owning a home is a keystone of wealth… both financial affluence and emotional security.
Suze Orman